890 N Federal Highway 103Lantana, FL33462
Due to the health concerns created by Coronavirus, we are offering personal 1-1 online video walkthrough tours for those people that cannot be here in person.




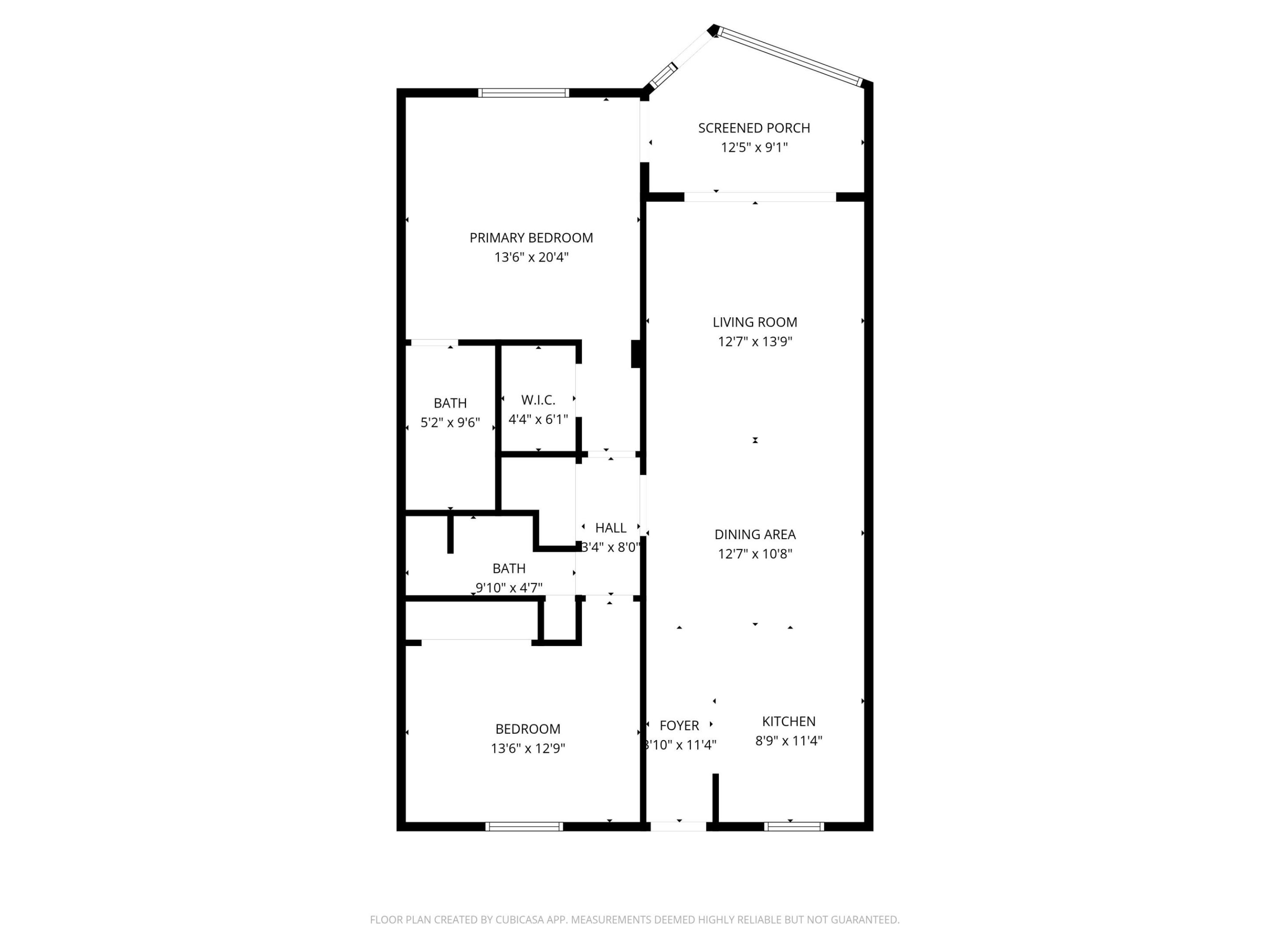
Welcome to 890 N. Federal Highway #103, a first-floor 2-bedroom, 2-bath condo located in a gated Intracoastal community on the north end of Lantana, ideally situated between Lantana and Lake Worth. This well-maintained unit is in good condition and offers a functional layout. The community consists of two four-story buildings and features a pool, clubhouse, library, kitchen, and social amenities. The location is walkable and close to shopping, dining, Lantana Beach, Lake Worth Beach, and with easy access along Federal Highway. Pet-friendly for pets under 30 lbs. Minimum 715 credit score required by the association. An affordable opportunity to enjoy Intracoastal living in a friendly, amenity-rich community. Rentals ok with restrictions.
| a month ago | Price changed to $175,500 | |
| a month ago | Listing updated with changes from the MLS® | |
| 3 months ago | Listing first seen on site |

All listings featuring the BMLS logo are provided by BeachesMLS, Inc. This information is not verified for authenticity or accuracy and is not guaranteed. Copyright © 2026 BeachesMLS, Inc. (a Flex MLS feed)
Last checked: 2026-03-27 09:37 AM UTC
Perfect home finder
'VIP' Property Search
Buying a home? Why not take a few minutes to fill out a form to describe your ‘dream’ home and let us find you the closest property matches?

Did you know? You can invite friends and family to your search. They can join your search, rate and discuss listings with you.